+7 495 740-29-89
пн-пт: 10:00—19:00
сб: 11:00—14:00
Туроператор
АС-тревел
Club Med на Вернадского

Типы номеров
в Club Med Punta Cana

Вернуться к описанию курорта

На территории Club Med Punta Cana общей площадью 42 гектара гостям предлагается размещение в 631 номере различных категорий. Номера категорий Супериор и Делюкс находятся в двух-трехэтажных семейных бунгало, объединенных группами. Бунгало на территории городка распределены по нескольким парковым зонам и окрашены в разные пастельные тона.

План курорта Club Med Punta Cana

Для спокойного и размеренного отдыха есть номера категории Делюкс в Дзэн-зоне только для взрослых.

Самым требовательным гостям предлагается эксклюзивное размещение в специальном квартале «5 трезубцев».

Внимание

Предлагаемые ниже планировки номеров носят информационный характер. Планировка может меняться в зависимости от наличия номеров такого же типа.

Номера категории Superior

Малоэтажные бунгало категории Супериор Club Med Punta Cana

Номера в малоэтажных коттеджах рассредоточены по всей территории курорта, некоторые ближе, некоторые — дальше от центра.

Номер Superior

C2

Номер категории Супериор на курорте Club Med Punta Cana

Всего 52 номера на первых и вторых этажах стандартных коттеджей. Номер состоит из спальни и отдельной гостиной. Балкон площадью 5 м2 с видом на тропические сады.

Площадь: 34 м2
Размещение: 1—2 чел.

Номер Superior
рядом с зоной Дзэн-Оазис

B

Номер категории Супериор на курорте Club Med Punta Cana

Ванная номера категории Супериор на курорте Club Med Punta Cana

Всего 21 номер в непосредственной близости к дзэн-зоне курорта. Расположены с 1 по 3 этаж корпусов Cortez и Pizarro. Номер состоит из спальни и отдельной гостиной. Вид на тропические сады.

Площадь: 29 м2
Размещение: 1—3 чел.

Номер Superior
для людей с ограниченными возможностями

H

План номера Супериор на курорте Club Med Punta Cana

Номер категории Супериор для инвалидов на курорте Club Med Punta Cana

Номер категории Супериор для инвалидов на курорте Club Med Punta Cana

Всего 2 номера на нижнем этаже, вид в сторону моря. Номер состоит из спальни, отдельной гостиной и двойного балкона (11 м2).

Площадь: 34 м2
Размещение: 1—3 чел.

Семейный номер Family Superior

C

План номера Фемили Супериор на курорте Club Med Punta Cana

Номер категории Family Superior на курорте Club Med Punta Cana

Номер категории Family Superior на курорте Club Med Punta Cana

Балкон номера Family Superior на курорте Club Med Punta Cana

Всего 244 номера с 1 по 3 этажи стандартных коттеджей в доминиканском стиле. Комнаты детей и родителей разделяются сдвижной дверью. Балкон площадью 5 м2.

Площадь: 34 м2
Размещение: 1—4 чел.

Семейный номер Family Superior
реновированный

 

План номера Фемили Супериор на курорте Club Med Punta Cana

Номер категории Family Superior на курорте Club Med Punta Cana

Номер категории Family Superior на курорте Club Med Punta Cana

Номер категории Family Superior на курорте Club Med Punta Cana

Номер категории Family Superior на курорте Club Med Punta Cana

Для тех, кто ищет простора и спокойствия, это идеальное место. Две отдельные спальни, душевая комната и балкон, выходящий в пышный сад. Все это утопает в аутентичной доминиканской атмосфере. Это место идеально подходит для создания драгоценных семейных воспоминаний.

Площадь: 34 м2
Размещение: 1—4 чел.

В номере: кондиционер, телефон, телевизор, интернет, мини-бар (без наполнения), всё для чая/кофе, утюг и гладильная доска, сейф, электрическая и USB-розетка, душ, фен

Семейный номер Family Superior
в центре курорта

C+

План номера Супериор Фэмили на курорте Club Med Punta Cana

Номер категории Family Superior в центре курорта Club Med Punta Cana

Номер категории Family Superior в центре курорта Club Med Punta Cana

Номер категории Family Superior в центре курорта Club Med Punta Cana

Всего 46 номеров в сердце курорта, с 1 по 3 этажи корпуса Colon, в нескольких минутах ходьбы от всех мест для семейного отдыха и пляжа. Этот семейный номер, вдохновленный богатой и яркой культурой Доминиканской Республики, состоит из 2 отдельных комнат и балкона площадью 5 м2 с видом на пышные тропические сады.

Площадь: 42 м2
Размещение: до 4 чел.

Семейный номер Family Superior
рядом с зоной Дзэн-Оазис

B+

План номера Супериор Фэмили на курорте Club Med Punta Cana

Номер категории Family Superior рядом с дзэн-зоной курорта Club Med Punta Cana

Номер категории Family Superior рядом с дзэн-зоной курорта Club Med Punta Cana

Ванная номера Family Superior рядом с дзэн-зоной курорта Club Med Punta Cana

Всего 102 номера с 1 по 3 этаж корпусов Cortez и Pizarro в непосредственной близости к дзэн-зоне курорта. Детская комната отделена от родительской занавеской. Есть балкон

Площадь: 29—34 м2
Размещение: 1—4 чел.

Объединенные номера 2 ×Superior

 

План номера Superior в Club Med Punta Cana

Объединенные номера Superior на курорте Club Med Punta Cana

Объединенные номера Superior на курорте Club Med Punta Cana

Два номера по 34 м2, состоящие из спальни и отдельной гостиной для детей и спальни и отдельной гостиной для родителей. Две душевых, два туалета и два балкона.

Площадь: 68 м2
Размещение: 4—6 чел.

Объединенные номера Family Superior + Superior

 

Объединенные номера Superior на курорте Club Med Punta Cana

Два номера по 34 м2, состоящие из спальни и отдельной гостиной для детей и спальни и отдельной гостиной для родителей. Две душевых, два туалета и два балкона.

Площадь: 68 м2
Размещение: 4—6 чел.

Объединенные номера 2 × Family Superior
реновированные

 

Объединенные номера Superior на курорте Club Med Punta Cana

Объединенные номера Superior на курорте Club Med Punta Cana

Этот номер, рассчитанный на большие семьи, состоит из четырех спален и является идеальным местом для того, чтобы в полной тишине и спокойствии провести драгоценные моменты. На всей территории царит аутентичная доминиканская атмосфера, а декоративные элементы гармонично сочетаются с пышными садами, которые видны с балконов.

Площадь: 68 м2
Размещение: 4—6 чел.

Номера категории Deluxe

Номер категории Deluxe

A2

План номера Делюкс в Club Med Punta Cana

Номер категории Делюкс в Club Med Punta Cana

Номер категории Делюкс в Club Med Punta Cana

Номер категории Делюкс в Club Med Punta Cana

Номер категории Делюкс в Club Med Punta Cana

Остановитесь в тихой гавани, вдохновленной доминиканским побережьем с кокосовыми пальмами. Просторный и освежающий номер Deluxe Costa del Coco сочетает в себе комфортные изгибы, мягкие оттенки, растительные принты и необработанные материалы. Спальная зона, элегантная гостиная, захватывающее пространство на открытом воздухе и душевая в стиле спа: все располагает к абсолютному расслаблению.

Площадь: 34 м2
Размещение: до 2 чел.

В номере: зона гостиной, меблированный балкон, кондиционер, телефон, телевизор, всё для чая / кофе, мини-бар (без наполнения), утюг и гладильная доска в номере, зонтик, сейф, бесплатный Wi Fi, розетки: 100-127 В, USB, душ, фен, халаты и тапочки

Семейный номер Family Deluxe
в центре курорта

 

План номера Фэмили Делюкс на курорте Club Med Punta Cana

Номер категории Делюкс на курорте Club Med Punta Cana

Номер категории Делюкс на курорте Club Med Punta Cana

Номер категории Делюкс на курорте Club Med Punta Cana

Этот просторный номер спроектирован с учетом потребностей семей и декорирован в духе доминиканской культуры. Он состоит из 2 отдельных комнат и 1 балкона с видом на пышные тропические сады. В номере есть отдельная спальня и санузел только для детей.

Расположенный недалеко от центра курорта, номер находится в нескольких минутах ходьбы от всех мест для семейного отдыха и пляжа.

Площадь: 55 м2
Размещение: до 4 чел.

Семейный номер Family Deluxe
в центре курорта, с видом на море

 

План номера Фэмили Делюкс на курорте Club Med Punta Cana

Номер категории Делюкс на курорте Club Med Punta Cana

Номер категории Делюкс на курорте Club Med Punta Cana

Номер категории Делюкс на курорте Club Med Punta Cana

Этот просторный номер оформлен с учетом потребностей семей и декорирован в духе доминиканской культуры. Он состоит из 2 отдельных комнат, в каждой из которых есть балкон с видом на Карибское море. В номере есть отдельная спальня и санузел только для детей.

Расположенный недалеко от центра курорта, номер находится в нескольких минутах ходьбы от всех мест для семейного отдыха и пляжа.

Площадь: 59 м2
Размещение: до 5 чел. Дзэн-зона

Номера в зоне Дзэн-Оазис

Дзэн-зона курорта Club Med Punta Cana

«Дзэн-Оазис» (Zen Oazis) — воплощение релакса и гармонии, особый уголок курорта, предназначенный только для взрослых гостей. Его просторные и элегантные номера оформлены в современном дизайне с тропическими акцентами, оснащены двуспальными кроватями и террасой или балконом с умиротворяющим видом на пышные сады.

Номер Junior Suite в дзэн-зоне
с садом

 

План номера Делюкс на курорте Club Med Punta Cana

Номер категории Делюкс в дзэн-зоне на курорте Club Med Punta Cana

Ванная номера Делюкс в дзэн-зоне на курорте Club Med Punta Cana

Сад номера Делюкс в дзэн-зоне на курорте Club Med Punta Cana

Всего 52 номера в зоне Zen Oazis, у каждого собственная терраса и частный сад площадью около 65 м2, в котором можно отдохнуть на уютных шезлонгах с балдахином. Вид на сады или дзэн-бассейн.

Площадь: 42 м2
Размещение: 1—2 чел.

Номер Junior Suite Terrace в дзэн-зоне
с террасой

A2+

План номера Делюкс на курорте Club Med Punta Cana

Номер категории Делюкс с террасой в дзэн-зоне на курорте Club Med Punta Cana

Ванная номера Делюкс с террасой в дзэн-зоне на курорте Club Med Punta Cana

Всего 26 номеров в зоне Zen Oazis, на вторых этажах, у каждого — терраса площадью 38 м2. На просторной террасе-балконе есть зона отдыха с шезлонгами. Вид на сады или дзэн-бассейн.

Площадь: 42 м2
Размещение: 1—2 чел.

Зона Tiara с комфортом «5 трезубцев» на курорте Club Med Punta CanaНомера категории Сьют в квартале Tiara «5 трезубцев»

Шикарное размещение с прямым видом на море или эксклюзивный бассейн. Гостям предлагаются семейные сьюты с террасой и особые услуги.

Семейный Сьют Family Suite
в зоне «5 трезубцев» со стороны бассейна

S5

План сьюта на курорте Club Med Punta Cana

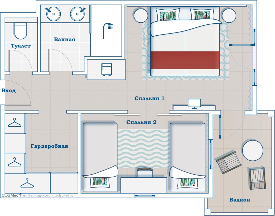
Всего 32 номеров в квартале повышенного комфорта Tiara. Меблированная терраса площадью 9 м2. Планировка построена следующим образом: прихожая с тремя дверями. Правая дверь в детскую спальню с двумя кроватями, шкафом для одежды, телевизором и окном (можно приоткрыть только немного из соображений безопасности). Центральная дверь в душевую с раковиной и туалетом. Левая дверь ведет в родительскую спальню с гостиной, и отдельной ванной комнатой.

Площадь: 70 м2
Размещение: до 5 чел.

Семейный Сьют Family Suite Ocean View
в зоне «5 трезубцев» с видом на океан

S5+

План сьюта на курорте Club Med Punta Cana

Сьют на курорте Club Med Punta Cana

Сьют на курорте Club Med Punta Cana

Ванная сьюта на курорте Club Med Punta Cana

Всего 32 номеров в квартале повышенного комфорта Tiara. Меблированная терраса площадью 9 м2. Номер состоит из двух спален и отдельной гостиной зоны. Планировка повторяет предыдущую категорию.

Площадь: 70 м2
Размещение: до 5 чел.

Номер Master Suite
в зоне «5 трезубцев» с видом на океан

?тиызж

План сьюта на курорте Club Med Punta Cana

Сьют в Club Med Punta Cana

Сьют в Club Med Punta Cana

Сьют в Club Med Punta Cana

Сьют в Club Med Punta Cana

Рай для больших семей, где завтрак на террасе с видом станет одним из самых ярких моментов вашего пребывания. Этот очень просторный Suite выходит на сад или бассейн. В нем 3 спальни: главная спальня и две спальни с двуспальными кроватями для детей, каждая со своей ванной комнатой (душевая комната для детей).

Площадь: 87 м2
Размещение: до 6 чел.

В номере: гостиная, меблированная терраса, кондиционер, телефон, телевизор, интернет, эспрессо-машина, всё для чая / кофе, утюг и гладильная доска в номере, зонтик, сейф, розетки: 100—127 В, USB, фен, халаты и тапчки

Вернуться к описанию курорта
Наталья Нере́тина Наталья Нере́тина
◆ директор отдела продаж
 +7 929 910-90-60

Иван Щенников Иван Щенников
◆ менеджер по туризму
 +7 926 384-99-44