+7 495 740-29-89
пн-пт: 10:00—19:00
сб: 11:00—14:00
Туроператор
АС-тревел
Club Med на Вернадского

Типы номеров
в Club Med Yabuli

Вернуться к описанию курорта

Club Med Yabuli, расположенный у подножья лыжных склонов, предлагает размещение в 284 номерах в двух корпусах: Grand Yabuli и Alpine Lodge.

Внешний вид корпусов курорта Club Med Yabuli

Гости могут выбрать номера двух основных категорий: Делюкс и Сьют (в том числе президентские сьюты).

Внимание

Предлагаемые ниже планировки номеров носят информационный характер. Планировка может меняться в зависимости от наличия номеров такого же типа.

Номера Делюкс

Номер категории Deluxe

  A3

План номера Deluxe на курорте Club Med Yabuli

Номер Делюкс в Club Med Yabuli

Номер Делюкс в Club Med Yabuli

Просторные комфортные номера с балконом на всех этажах в обоих корпусах. Всего 121 номер.

В номере: телефон, телевизор, интернет, софа, сейф, утюг и гладильная доска, все для чая/кофе, мини-бар (пополняется еженедельно), холодильник, душ, фен, халаты и тапочки, шкафчик для лыж с сушилкой для обуви.

Площадь номера: 30—55 м2
Количество гостей: 1—3 чел.

Номер Deluxe
с видом на горы

A3+

План номера Deluxe на курорте Club Med Yabuli

Номер Делюкс в Club Med Yabuli

Номер Делюкс в Club Med Yabuli

Номера на всех этажах в обоих корпусах. Вид на горы и часовую башню. Всего 73 номера.

В номере: телефон, телевизор, интернет, софа, сейф, утюг и гладильная доска, все для чая/кофе, мини-бар (пополняется еженедельно), холодильник, душ, фен, халаты и тапочки, шкафчик для лыж с сушилкой для обуви.

Площадь номера: 33—49 м2
Количество гостей: 1—3 чел.

Семейный номер Deluxe Family

 

План номера Deluxe на курорте Club Med Yabuli

Номер Делюкс в Club Med Yabuli

Номер Делюкс в Club Med Yabuli

Просторные номера подходят для семей с детьми. Всего 15 номеров.

В номере: телефон, телевизор, интернет, софа, сейф, утюг и гладильная доска, все для чая/кофе, мини-бар (пополняется еженедельно), холодильник, душ, фен, халаты и тапочки, шкафчик для лыж с сушилкой для обуви.

Площадь номера: 62—70 м2
Количество гостей: до 4 чел.

Объединенные номера 2 × Deluxe

 

План номера Deluxe на курорте Club Med Yabuli

Отличный вариант для больших семей и групп туристов.

В номере: телефон, телевизор, интернет, софа, сейф, утюг и гладильная доска, все для чая/кофе, мини-бар (пополняется еженедельно), холодильник, душ, фен, халаты и тапочки, шкафчик для лыж с сушилкой для обуви.

Площадь номера: 60—110 м2
Количество гостей: до 6 чел.

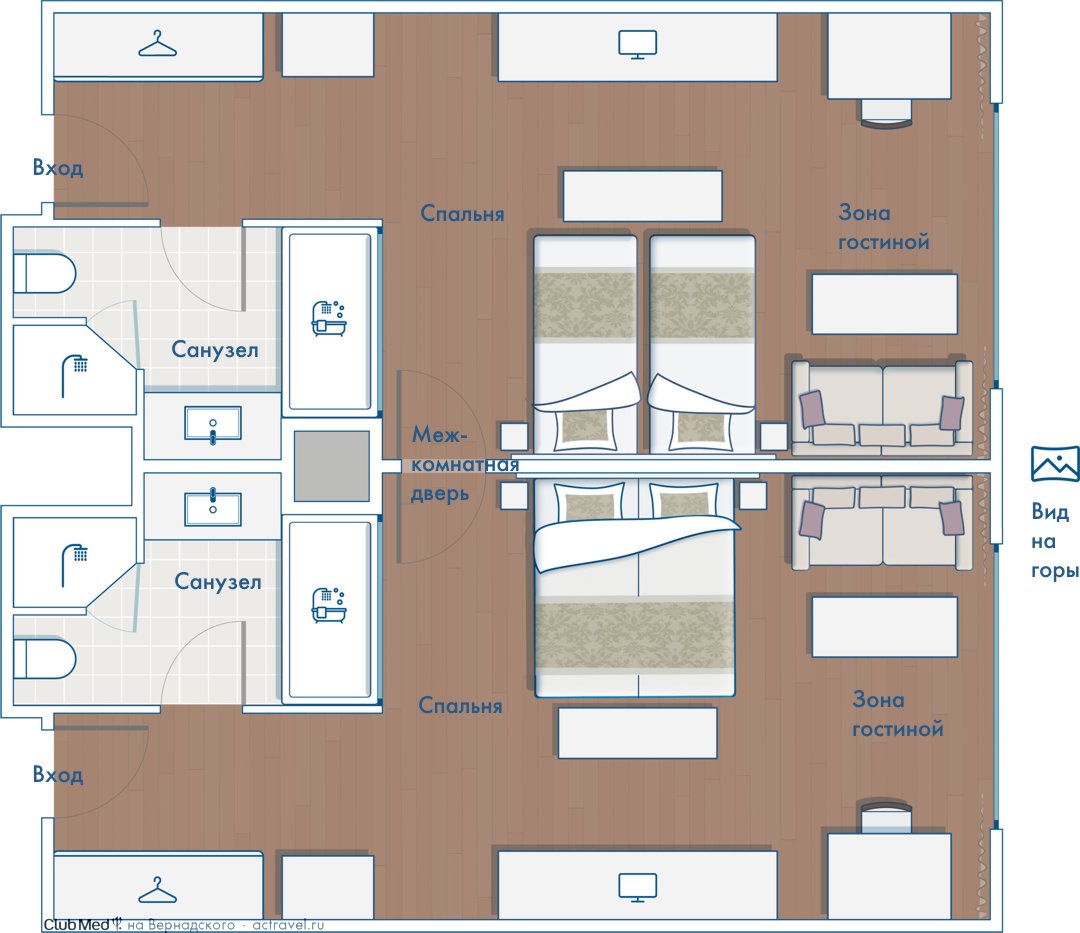
Объединенные номера 2 × Deluxe
с видом на горы

 

План номера Deluxe на курорте Club Med Yabuli

Два уютных номера с зоной гостиной в каждом и межкомнатной дверью.

Площадь номера: 67—80 м2
Количество гостей: до 6 чел.

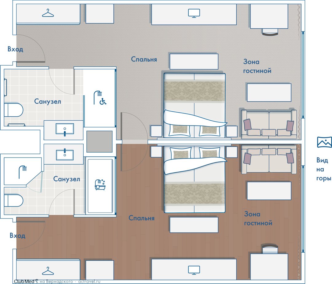
Номер Deluxe
для людей с ограниченными возможностями

 

План номера Deluxe на курорте Club Med Yabuli

Номер Делюкс в Club Med Yabuli

Благодаря большому пространству и оснащению, адаптированному для людей с ограниченными физическими возможностями, спальня предлагает уютное и комфортное размещение.

В номере: телефон, телевизор, интернет, софа, сейф, утюг и гладильная доска, все для чая/кофе, мини-бар (пополняется еженедельно), холодильник, душ, биде, фен, халаты и тапочки.

Площадь номера: 34—36 м2
Количество гостей: до 3 чел.

Объединенные номер Deluxe с видом на горы
и Deluxe для людей с ограниченными возможностями

 

План номера Deluxe на курорте Club Med Yabuli

Из окон открывается вид на горы и часовую башню.

В номере: телефон, телевизор, интернет, софа, сейф, утюг и гладильная доска, все для чая/кофе, мини-бар (пополняется еженедельно), холодильник, душ, фен, халаты и тапочки, шкафчик для лыж с сушилкой для обуви.

Площадь номера: 66—92 м2
Количество гостей: до 6 чел.

Номера Сьют

Номер категории Suite

S2

План номера Suite на курорте Club Med Yabuli

Номер Сьют в Club Med Yabuli

Номер Сьют в Club Med Yabuli

Номер Сьют в Club Med Yabuli

Номер Сьют в Club Med Yabuli

Выбрав размещение в номере категории Suite с изысканной обстановкой, вы можете рассчитывать на исключительный уровень обслуживания. В сьютах на всех этажах обоих корпусов у ва будет небольшая отдельная гостиная и великолепный вид на горы. Всего 36 номеров

В номере: телефон, телевизор, интернет, софа, сейф, утюг и гладильная доска, все для чая/кофе, мини-бар (пополняется ежедневно), ванна, душ, фен, халаты и тапочки.

Площадь номера: 52—87 м2
Количество гостей: 1—4 чел.

Президентский номер Presidental Suite

S2+

План номера Suite на курорте Club Med Yabuli

Номер Сьют в Club Med Yabuli

Номер Сьют в Club Med Yabuli

Номер Сьют в Club Med Yabuli

Номер Сьют в Club Med Yabuli

Единственный номер в корпусе Grand Yabuli с пленительным видом на горы. Исключительный сервис и отдельная лаундж-зона

В номере: телефон, телевизор, интернет, софа, сейф, утюг и гладильная доска, все для чая/кофе, мини-бар (пополняется ежедневно), ванна, душ, фен, халаты и тапочки.

Площадь номера: 121 м2
Количество гостей: 1—2 чел.

Объединенные номера Suite + Deluxe
с видом на горы

 

План номера коннект на курорте Club Med Yabuli

Всего 6 номеров на всех этажах корпуса Alpine Lodge с видом на горы

В номере: телефон, телевизор, интернет, софа, сейф, утюг и гладильная доска, все для чая/кофе, мини-бар (пополняется ежедневно), ванна, душ, фен, халаты и тапочки.

Площадь номера: 83—95 м2
Количество гостей: до 7 чел.

Объединенные номера Presidental Suite + Deluxe

 

План номера коннект на курорте Club Med Yabuli

Объединенные номера в Club Med Yabuli

Вариант для семей, не готовых к компромиссам.

В номере: телефон, телевизор, интернет, софа, сейф, утюг и гладильная доска, все для чая/кофе, мини-бар (пополняется ежедневно), ванна, душ, фен, халаты и тапочки.

Площадь номера: 121 м2
Количество гостей: до 5 чел.

Вернуться к описанию курорта
Наталья Нере́тина Наталья Нере́тина
◆ директор отдела продаж
 +7 929 910-90-60

Иван Щенников Иван Щенников
◆ менеджер по туризму
 +7 926 384-99-44